

Здравствуйте друзья.
Думаю, не для кого не будет секретом тот факт, что перед тем, как приступить к расчетам кухонного гарнитура, сначала нужно сделать чертежи.
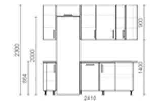
На них указываются габаритные размеры будущего изделия, и размеры отдельных модулей.
Но для этого, необходимо знать размеры кухонного помещения.
Только потом, можно высчитывать размеры верхней и нижней базы, расстояние между ними, размеры и расположение отдельных составляющих кухни.
Здесь нужно понимать главный принцип: всегда расчеты делаются от «большего к меньшему».


Например, зная размер помещения, например, по ширине (не забываем, что это должен быть наименьшим), отнимаем от него величину необходимых зазоров, и получаем габаритный размер нижних модулей.


Затем, разбиваем получившееся значение на составные части, которые уже будут размерами отдельного короба.
Ну а каждый короб, в конце, делится на детали, из которых он состоит.
Так же и по высоте.


От общей высоты отнимается высота нижней кухонной базы (которая является исходной величиной, так как определяется индивидуально, в зависимости от роста хозяина кухонного гарнитура, от того, какая техника будет встроена в нижнюю базу и так далее).
После этого, определяется расстояние между верхней и нижней базами, ну а в конце высчитывается размер верхних коробов (с учета зазора между ними и потолком).
Это – общий алгоритм расчетов.
Главное, в процессе, не забыть учесть следующие факторы:
- Модули должны быть расположены друг от друга так, чтобы изделием было бы удобно пользоваться (как пример, можно привести то же правило «рабочего треугольника»)
- Расположение встраиваемой техники должно соответствовать техническим нормам (например, холодильник не должен располагаться возле плиты, а та, в свою очередь, не должна находиться рядом с мойкой).
- Так же, расположение модулей друг относительно друга, не должно мешать работе встроенной фурнитуры (например, выдвижным ящикам или корзинам)
- Так же, не стоит забывать о возможности спроектировать кухонные короба под фасады стандартного ряда, и тем самым, уменьшить себестоимость всего изделия.
- Нужно всегда учитывать нюансы помещения, находящиеся в рабочей зоне гарнитура (например, батареи, подоконники, и проч.). Модули нужно проектировать с их учетом.
- Так же, «на фоне всего вышесказанного», кухня должна иметь соответствующий дизайн, какие то, более-менее пропорциональные формы и так далее.
Чертеж является только частью общего проекта (пакета документации, необходимого для изготовления изделия), но основной его частью.
По этому, к его изготовлению нужно подходить довольно серьезно, имея соответствующие знания в технологии изготовления корпусной мебели.
На этом блоге можно заказать изготовление всего проекта полностью (это для тех, кто в состоянии сам собрать и установить мебель, но боится ошибиться в ее расчетах).
Ну а на этом я заканчиваю.
До встречи.